連接件模型
Connector Model
Connector Model
聯系APAS / Contact us
- 地址:天津市西青經濟技術開發區賽達國際工業城A3-2.
- 郵箱:lxc@apas.com.cn
- 電話:022-87920088
- 傳真:請聯系網絡管理員
- 郵編:300385
- 咨詢熱線:13702119190(24小時服務熱線)
連接件模型
/ Connector Model

30系列鋁型材鑄鋁角件3d模型下載
產品描述 / Name
3030規格鋁型材鑄鋁角件適用于輕型鋁型材框架90度直角連接,起固定支撐作用;可以下載鑄鋁角件SLDWORKS三維模型實現鋁型材框架的設計組裝;
022-87920099
可以根據需求進行設計加工,提供上門安裝服務;可以根據特殊需求進行鋁型材開模定制。
* 免費提供工業鋁型材選型手冊 →點擊咨詢
內容來源:http://m.jiaoyu0311.com 作者:武將 發布日期:2020年04月09日 10時37分 閱讀次數:3699 次
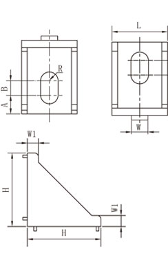
| 30系列鑄鋁角件主要用于加強鋁型材框架連接點的支撐能力,也可以用作需要移動位置的鋁型材連接;該規格鋁型材鑄鋁角件只適用于3030規格鋁型材之間的緊固連接,裝配蘇勇T型螺栓及法蘭螺母需要另配; |
![]() ![]()
|
| 3030規格鋁型材鑄鋁角件材質為鑄鋁材料,物理強度較高,但韌性相對于型材角件較低;鑄鋁角件屬于鋁型材框架快速連接配件之一,裝配時不需要對鋁型材進行特殊加工處理,將鑄鋁角件搭配T型螺栓及法蘭螺母直接置入裝配位置型材槽內鎖緊即可; |
|
槽型規格
|
L(mm)
|
H(mm)
|
W(mm)
|
W1(mm)
|
A(mm)
|
B(mm)
|
R(mm)
|
材質
|
訂貨編號
|
|
槽8 |
28
|
35
|
5.8
|
6.5
|
12.5
|
8
|
3.5
|
鑄鋁
|
CE-SB3030-8
|
聯系APAS/ Contact us
天津艾普斯工業鋁型材股份有限公司
聯系電話:022-87920088
企業傳真:(避免惡意廣告)請聯系該企業網絡管理員
服務熱線:13702119190 (24小時服務熱線)
Q Q:534973906
企業郵箱: lxc@apas.com.cn
企業地址:天津市西青經濟技術開發區賽達國際工業城A3-2
聯系電話:022-87920088
企業傳真:(避免惡意廣告)請聯系該企業網絡管理員
服務熱線:13702119190 (24小時服務熱線)
Q Q:534973906
企業郵箱: lxc@apas.com.cn
企業地址:天津市西青經濟技術開發區賽達國際工業城A3-2
采購意向留言:* 為必填















QQ咨詢
電話聯系
聯系電話

在線留言
樣冊下載
